KASITA
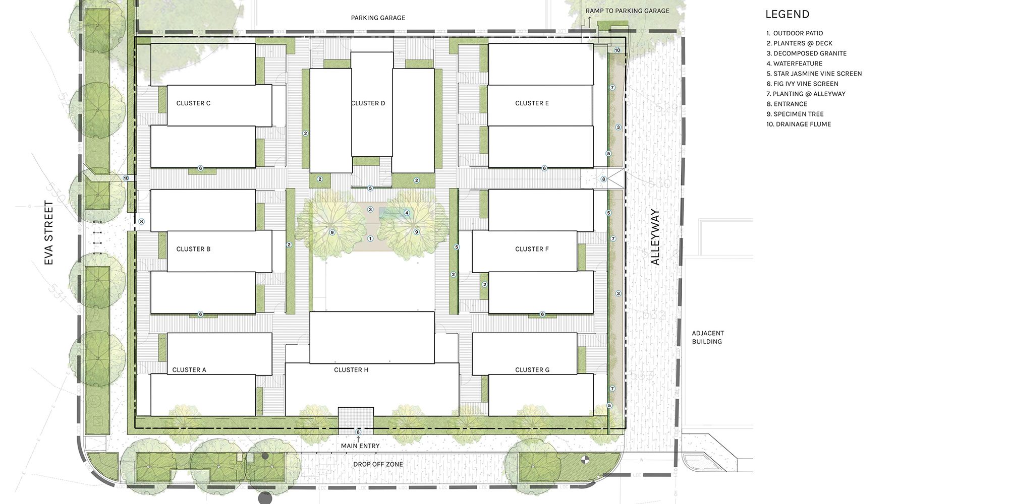
The Kasita Hotel will be Austin's first modular hotel in the south central part of the city just off South Congress street. The project includes a perimeter tree lined streetscape, water harvesting stormwater system, and private courtyard gardens for each unit.
Project Specs
Client: Girl's Hotel LLC
Project Size: 0.5 Acres
Year: 2020
Scope: Schematic Design through Construction Administration
Sustainability Goals: Water Harvesting, AEGB, LEED
Team Members: Campbell LA, Kasita















